Grundstück mit genehmigtem Fincaprojekt in ruhiger Lage bei Campos

Objektbeschreibung:

Nur etwa 5 Minuten außerhalb von Campos befindet sich dieses besondere Grundstück in ruhiger und gut erreichbarer Lage. Campos ist eine authentische und ganzjährig belebte Gemeinde im Süden Mallorcas mit sehr guter Infrastruktur. Restaurants, Cafés, Einkaufsmöglichkeiten, Wochenmarkt, Schulen sowie medizinische Versorgung sind vor Ort vorhanden. Die beliebten Naturstrände Es Trenc und Sa Ràpita sind in kurzer Fahrzeit erreichbar.

Das nahezu quadratische Grundstück mit einer Fläche von 23.955 qm liegt eingebettet in die mallorquinische Landschaft und bietet einen wunderschönen Panoramablick auf den Berg Sant Salvador, Randa sowie das Tramuntana-Gebirge. Eine traditionelle mallorquinische Natursteinmauer umrahmt das Anwesen und sorgt für Privatsphäre sowie typischen Inselcharme. Das Zentrum von Campos erreichen Sie in nur 5 Minuten.

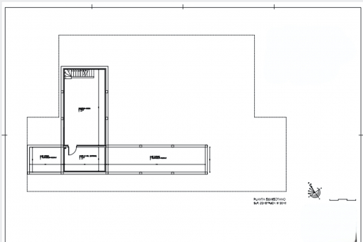
Für das Grundstück liegt ein Fincaprojekt mit aktiver Baugenehmigung vor, sodass direkt mit dem Bau begonnen werden kann. Die geplante Architektur ist großzügig gestaltet und überzeugt durch ein modernes, offenes Design im Bungalow-Stil.

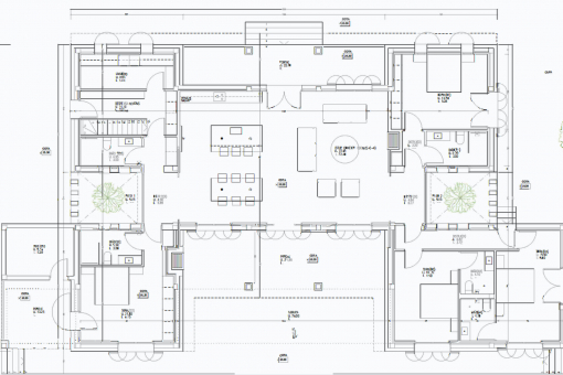
Geplant sind ca. 408 qm Wohnfläche sowie eine bebaute Fläche von ca. 712 qm. Ergänzt wird das Anwesen durch großzügige Terrassenflächen von ca. 130 qm. Ein besonderes Highlight ist der außergewöhnlich große Swimmingpool mit ca. 105 qm Wasserfläche, einer Breite von 4 Metern und einer Länge von 25 Metern – ein echtes Schwimmbecken, das ideal zum ausgiebigen Schwimmen geeignet ist und in dieser Dimension heute kaum noch realisierbar ist.

Das Raumkonzept im Überblick:

Offener Wohn- und Essbereich mit Küche mit ca. 78 qm

Vier Schlafzimmer, jeweils mit Badezimmer en Suite

Zwei innenliegende Patios für Ruhe, Licht und Privatsphäre

Kellerbereich mit zusätzlichen Nutzungsmöglichkeiten

Alle relevanten Unterlagen liegen vollständig vor.
Kontaktieren Sie uns gerne für weitere Informationen oder bei Fragen zu diesem Projekt.

Lage & Umgebung:

Das Landstädtchen Campos im Südosten der Insel liegt verkehrstechnisch günstig auf halbem Weg zwischen Llucmajor und Santanyí. Umgeben von weitläufigen, landwirtschaftlich genutzten Flächen bietet es zahlreiche Geschäfte für den täglichen Bedarf, Restaurants und Sporteinrichtungen. Von dem schon seit dem Mittelalter bestehenden Ort stehen heute nur noch einige Wehrtürme, heutzutage ist Campos eine lebendige Kleinstadt, die vor allem an den Markttagen zahlreiche Besucher anlockt.

Der berühmte, lange Sandstrand von Es Trenc mit seinen Dünen und türkisblauem Meer gehört zur Gemeinde Campos und bietet Badefreuden mit karibischem Flair.

Den Flughafen erreichen Sie in 25 Minuten, die Inselhauptstadt Palma liegt rund 35 km entfernt.

MAL-077991

Campos

23.955 m²

-

712 m²

-

-

€ 600.000,-

Ihre Anfrage

Vielen Dank für Ihre Anfrage!
Wir werden diese umgehend bearbeiten und uns mit Ihnen in Verbindung setzen.